Обратная связь

HYVA

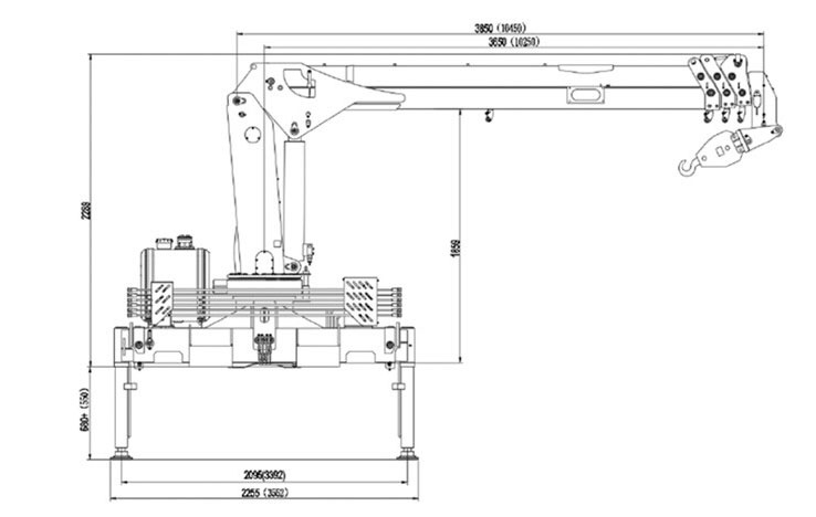
Характеристики HST3.2 E3

Наименование HST3.2 E3
Количество секций стрелы 4
Грузовой момент, тм 8,0
Рабочий радиус, м 2,5 - 10,25
Максимальная грузоподъемность на рабочем радиусе 2,5 м, кг 3200
Максимальная грузоподъемность на максимальном рабочем радиусе, м  400
Длина стрелы, м. 3,65 – 10,25
Объем масляного бака, л 100
Высота поднятия крюка, м 12,5
Угол поворота стрелы, град. 360 без ограничений
Скорость вращения колонны, об/мин 2,5
Давление в гидросистеме, мПа 20,0
Вес ,кг 1250

Характеристики HST6.3 E3

Наименование HST6.3 E3
Количество секций стрелы 4
Грузовой момент, тм 15,0
Рабочий радиус, м 2,5 - 12,64
Максимальная грузоподъемность на рабочем радиусе 2,5 м, кг 6300
Максимальная грузоподъемность на максимальном рабочем радиусе, м  600
Длина стрелы, м. 4,54 – 12,64
Объем масляного бака, л 100
Высота поднятия крюка, м 14,9
Угол поворота стрелы, град. 360 без ограничений
Скорость вращения колонны, об/мин 2,5
Грузовой канат диаметром 10 мм длиной, м 85
Максимальная ширина выдвинутых аутригеров, м 5,46
Давление в гидросистеме, мПа 22,0
Вес ,кг 2750

Краны-манипуляторы в наличии

ДвигательCummins ISF3.8S5168
156 л.с.
3760 см³
ЭкостандартЕвро-5
Производитель КМУ, модельHYVA HST3.2E3
Грузоподъёмность КМУ (т)3.2
Длина стрелы КМУ (м)10,2
Остаточная г/п автомобиля (кг)3 330
Бортовая платформа, размер (мм)6200×2550×600
По запросу Перейти
ДвигательCUMMINS ISF4.5S5210
206 л.с.
4460 см³
ЭкостандартЕвро - 5
Производитель КМУ, модельHYVA HST6.3 E3
Грузоподъёмность КМУ (т)6,30
Длина стрелы КМУ (м)12,64
Остаточная г/п автомобиля (кг)4130
Бортовая платформа, размер (мм)6300×2540×600
от 8 900 000 Перейти
Мы используем файлы cookies. Оставаясь на сайте, вы соглашаетесь с условиями использования файлов cookies. Ознакомиться: Политика конфиденциальности, Согласие.